Trilocale in vendita

Roma, Via Sestino - Borgata Fidene
€ 240.000
3 locali 3 locali
75 Mq 75 Mq
1 bagno 1 bagno

Trilocale in vendita

Roma, Via Sestino - Borgata Fidene

Descrizione annuncio

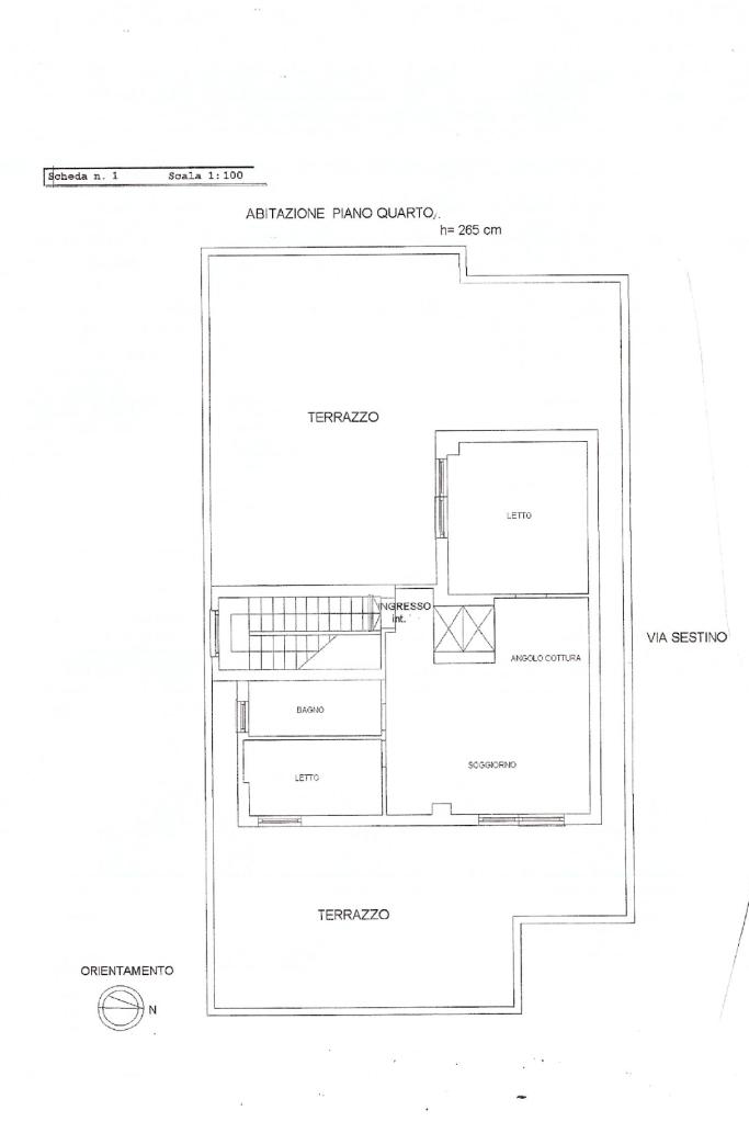
In zona residenziale tranquilla e ben servita, proponiamo la vendita di una soluzione abitativa situata in Via Sestino, nel cuore del quartiere 'Fidene'. Si tratta di un delizioso attico, accogliente e pronto da vivere, situato al quarto piano con ascensore di una palazzina in cortina ben curata.

L’immobile si presenta in ottime condizioni e offre spazi ben distribuiti: entriamo su un luminoso soggiorno con angolo cottura, seguito da una cameretta, una camera matrimoniale e un bagno finestrato, dotato di tutti gli elementi necessari, moderno e funzionale.

Tutti gli ambienti sono valorizzati da ampie porte-finestre, che donano luce naturale durante tutto il giorno e creano una piacevole continuità con l’esterno, un magnifico terrazzo di 90 mq, vero punto di forza della proprietà. Uno spazio raro, ideale per cene all’aperto, momenti di relax o per chi desidera vivere l’esterno come un’estensione della casa.

L’immobile è dotato di infissi nuovi in doppio vetro, porta blindata e climatizzazione, per offrire comfort e sicurezza in ogni stagione.

La posizione è strategica : a pochi minuti dal GRA, vicino alla stazione ferroviaria di Fidene, con scuole, supermercati, parchi e mezzi pubblici a portata di mano.

Mostra tutto

Nelle vicinanze

Trasporto pubblico Trasporto pubblico
Fidene
Fidene
710 m
Saxa Rubra
Saxa Rubra
1,7 Km
Radicofani/Capannori
Radicofani/Capannori
60 m
Radicofani/S. Gimignano
Radicofani/S. Gimignano
100 m
Stazione di Nuovo Salario
Stazione di Nuovo Salario
2,0 Km
Ricariche auto elettriche Ricariche auto elettriche
Eneldrive Saxa Rubra
1,6 Km
Gallo Capitale Pizza E Grill
1,6 Km
IKEA Porta di Roma
2,2 Km
Scuole Scuole
Scuole
470 m
Istituto Comprensivo Fidenae
530 m
Istituto Comprensivo Carlo Levi
590 m
Scuola Media Statale Carlo Levi
1,1 Km
IIS Pacinotti-Archimede - succursale
1,3 Km
Farmacia Farmacia
Farmacia Calvani
160 m
Farmacia Florio
190 m
Farmacia Parco delle Sabine
590 m
Morelli Simonetta
1,1 Km
Farmacia Simeoni
1,1 Km
Ospedali Ospedali
San Raffaele Flaminia - Residenza Sanitaria Assitenziale
2,5 Km
Supermercati Supermercati
Idromarket
290 m
Conad
350 m
Tuodì
580 m
Decó
580 m
Il Castoro
630 m
Negozi Negozi
Minimarket
50 m
Alimentari
130 m
Pan di casa
160 m
Pane Pasta all'uovo
320 m
Kaotica
880 m
Bar Bar
Billions
1,7 Km
Bar
2,9 Km
Australian Bar
3,0 Km
Ristoranti Ristoranti
Ristorante Hao Xiang Ni
230 m
Ristorante Amatrice
560 m
I Cavalieri
710 m
‘nduja bufala e pachino
880 m
Pizzeria La Stella
910 m
Mostra tutto

Caratteristiche

Rif.:
61085044
Piano:
4 di 4 con ascensore (Piano attico)
Terrazzi:
1
Camere da letto:
2
Arredamento:
Parziale
Condizionamento:
Autonomo
Mostra tutto
Prezzo Prezzo
€ 240.000
Rata mutuo Rata mutuo
€ 1.132 / mese
Proponi il tuo prezzoProponi il tuo prezzo

Classe Energetica

E
E
E
E
E
E
E
E
E
Anno di costruzione:
1965
Riscaldamento:
Autonomo
Tipo impianto:
A radiatori
Tipo alimentazione:
Gasolio

Ti interessa visionare l'immobile?

Fissa un appuntamento  Fissa un appuntamento

Richiedi informazioni

Clicca su Leggi per aprire l'informativa
* Questi campi sono obbligatori

Calcola il tuo mutuo

Semplice e senza impegno
Anticipo

( % )
Mutuo

( % )

pochi semplici passi

inserisci i tuoi dati
Questionario completato
Grazie per aver richiesto un appuntamento senza impegno con un nostro Consulente del Credito e Assicurativo.

Hai inserito correttamente tutti i dati necessari e a breve riceverai una e-mail con un link da convalidare per inviare i tuoi dati.
Affiliato
Fidene Srl
Via Radicofani, 217 00138 Roma (RM)

Il nostro staff


  • Vincenza Pezzolla
    Affiliata

  • Giorgia Micheli
    Coordinatrice

  • Gaetana Marino
    Collaboratrice

  • Laura Ametrano
    Coordinatrice

  • Jhona Mae Andres
    Collaboratrice
Via Radicofani, 217 00138 Roma (RM)
Zona: Fidene
Mostra su mappa
Orari: Lunedì - Venerdì ore 9.00 / 13.00 - 15.00 / 20.00 Sabato ore 9.00 / 13.00 - 15.00 / 19.00 Domenica su appuntamento
Affiliato
Fidene Srl
Via Radicofani, 217 00138 Roma (RM)

2025 Tecnocasa Franchising S.p.A. - P. IVA 08365160152 - Via Monte Bianco 60/A 20089 Rozzano (MI). Ogni agenzia ha un proprio titolare ed è autonoma. Privacy policy | Policy utilizzo | Cookie policy